SKU: IO 9001

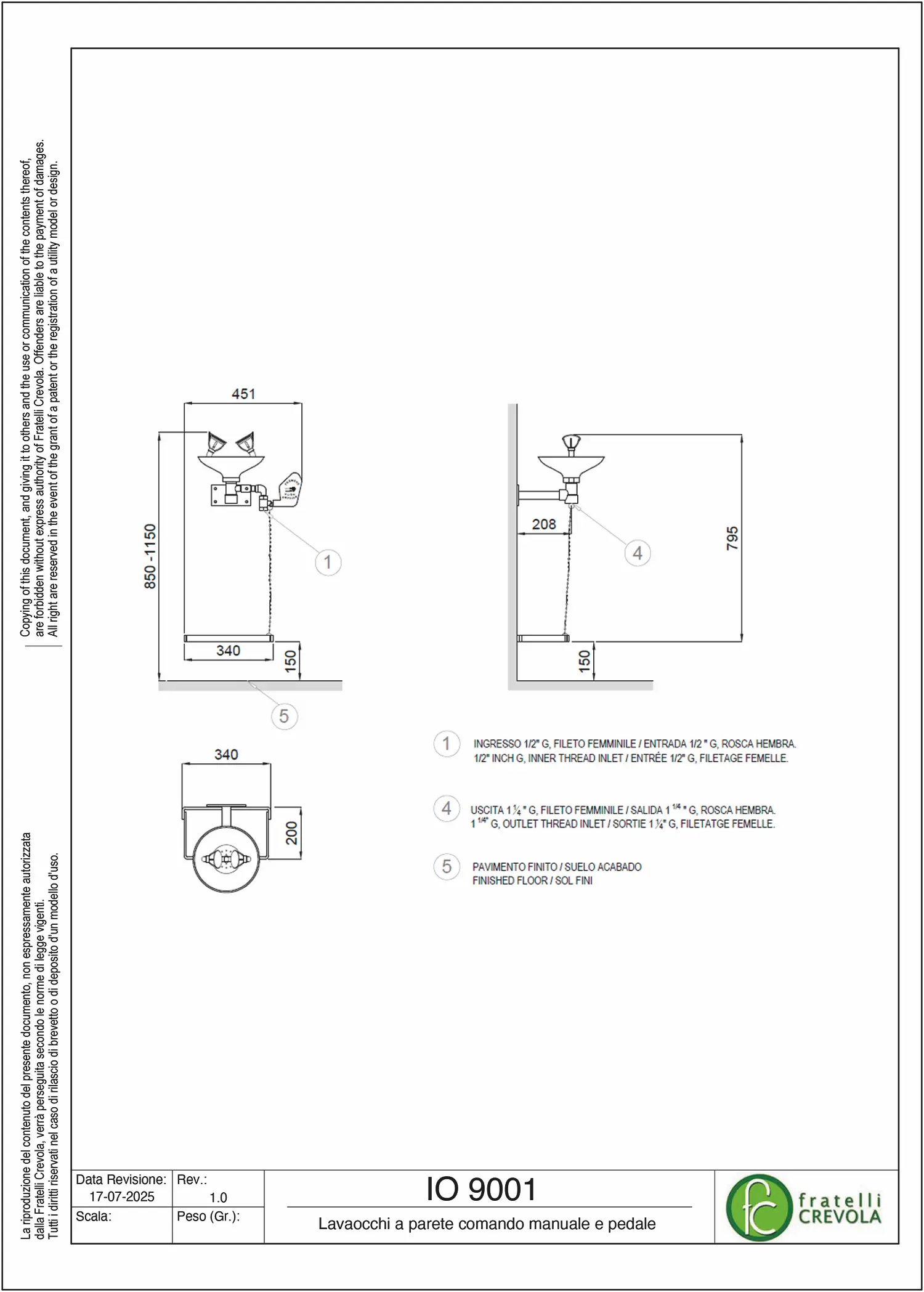
IO 9001

Lavaocchi a parete comando manuale e pedale

Versioni disponibili su richiesta:
IO….SS con vaschetta in Acciaio Inox AISI304
IO….X in Acciaio Inox AISI304
IO….XX in Acciaio Inox AISI316

Consulta gli altri prodotti Docce Lavaocchi